Produktdatabase
Vinduer
  • KRONE Energy
  • KRONE Flex
  • KRONE Coto62
  • KRONE Wood
  • KRONE View
  • KRONE Fire
Døre
  • KRONE Energy
  • KRONE Flex
  • KRONE Coto62
  • KRONE Wood
  • KRONE View
  • KRONE Fire
  • KRONE Entry
  • KRONE Skydedør
Download
  • System-snittegninger
  • Greb & tilbehør
  • BIM objekter
  • Indbygningstegninger
  • Montage- og Brugervejledninger
  • Ydeevnedeklarationer (DoP)
  • DGNB-dokumentation
  • Produktspecifikke EPD'er
Info-center
Login (For medarbejdere)
Produkt database
Gå til KRONE VINDUER A/S
  • Krone Produktdatabase
  • Døre
  • KRONE Energy
  • Tegninger
  • Døre

KRONE Energy

  • Systeminformation
  • Åbnefunktioner
  • Greb & tilbehør
  • Ruder
  • Fyldinger
  • Tegninger
  • Test & dokumentation
  • Vejledninger
  •  

Tegninger

Oversigt over snittegninger af KRONE Energy

Her finder du snittegninger for KRONE Energy
Snittegningerne kan downloades som DWG- og PDF-filer og kan frit benyttes til projektering med KRONE.
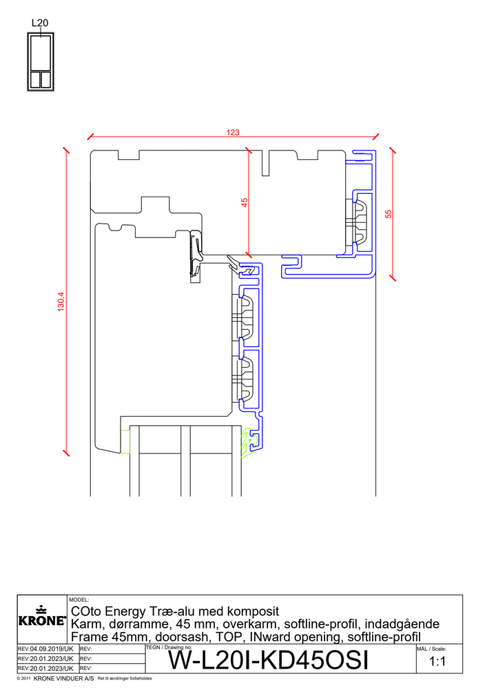
COto Energy træ/alu med komposit – Karm, dørramme, 45 mm, overkarm, Softline profil, indadgående
L20
COto Energy – Karm, vinduesdør, 45 mm, bundkarm, Softline profil, udadgående
L22
COto Energy – 25 mm vandret klæbesprosse
L24
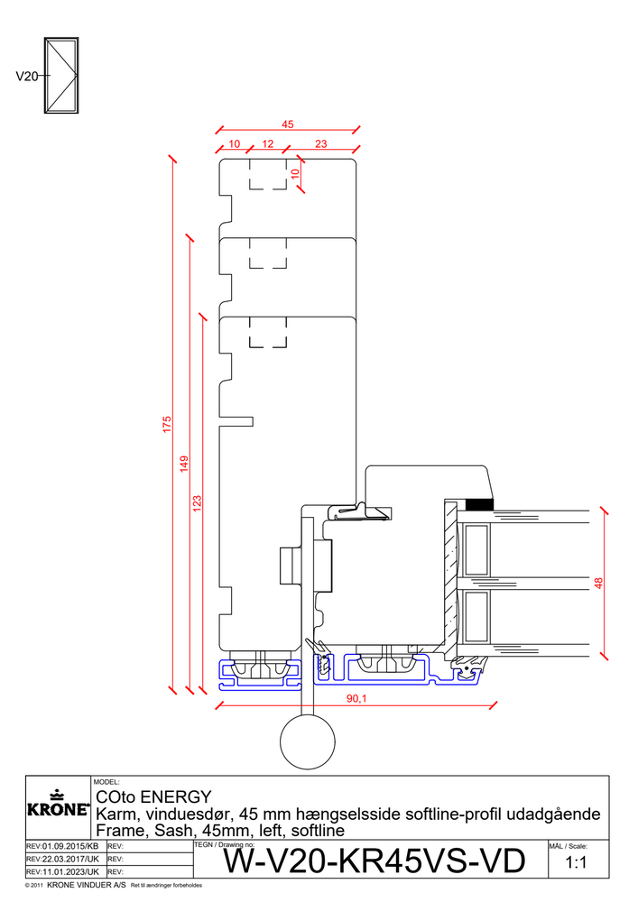
COto Energy – Karm, vinduesdør, 45 mm, hængselsside, Softline profil, udadgående
V20
COto Energy – 60 mm lodret sprosse
V23